URBANISMO PUBLICO

PGOU POR ADAPTACION PARCIAL DE LAS NN.SS. DE ALORA - MALAGA

Modificación del Planeamiento

REPARCELACION EN BENAMARUEL - GRANADA

Proyecto de repacelación de la unidad de Ejecución Virgen de la Cabeza

PLAN PARCIAL PARA LA ORDENACION DEL AREA DE REPARTO AR - 1 MARACENA - GRANADA

El objeto del presente documento es la redacción de un Plan Parcial que afecta a un sector de suelo urbanizable sectorizado residencial, denominado AR-1

PGOU POR ADAPTACION PARCIAL DE LAS NN.SS. DE NIGÜELAS - GRANADA

Modificación del Planeamiento

ORDENACION DE ESPACIOS LIBRES Y EQUIPAMENTOS EN LA UE-1 DE VIZNAR

"Parque de la Libertad "

URBANISMO PRIVADO

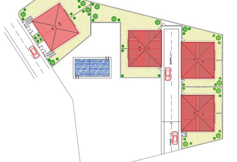
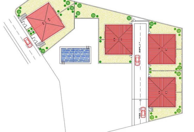
URBANIZACION EN DILAR - GRANADA

Urbanizacion destinada a la construccion de 8 viviendas unifamiliares.

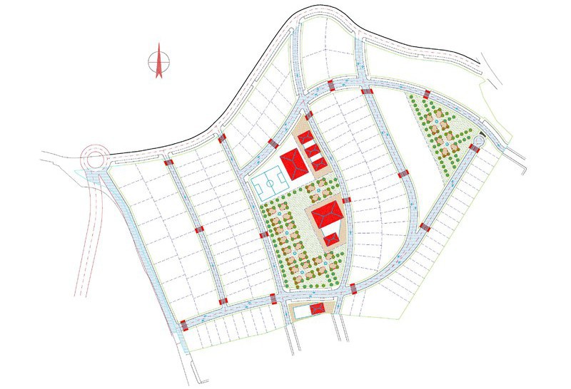
PLAN ESPECIAL UE8 URBANIZACION SAN MIGUEL VIZNAR - GRANADA

Urbanizacion destinada a la promocion particular de vivienda unifamiliar y vivienda plurifamiliar y  completado con equipamientos publico, y privados.

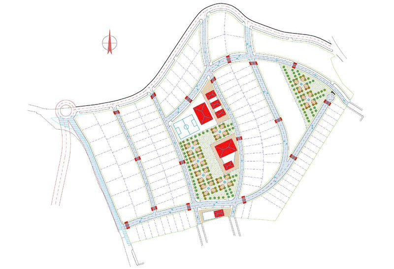
PLAN PARCIAL URBANIZACION EL RINCONCILLO NIGÜELAS - GRANADA

Urbanizacion destinada a la promocion particular de vivienda unifamiliar y vivienda plurifamiliar y completado con equipamientos publico, y privados.

PLAN ESPECIAL CAPILEIRA C13 - GRANADA

Destinado al desarrollo para la promocion particular de vivienda unifamiliar.

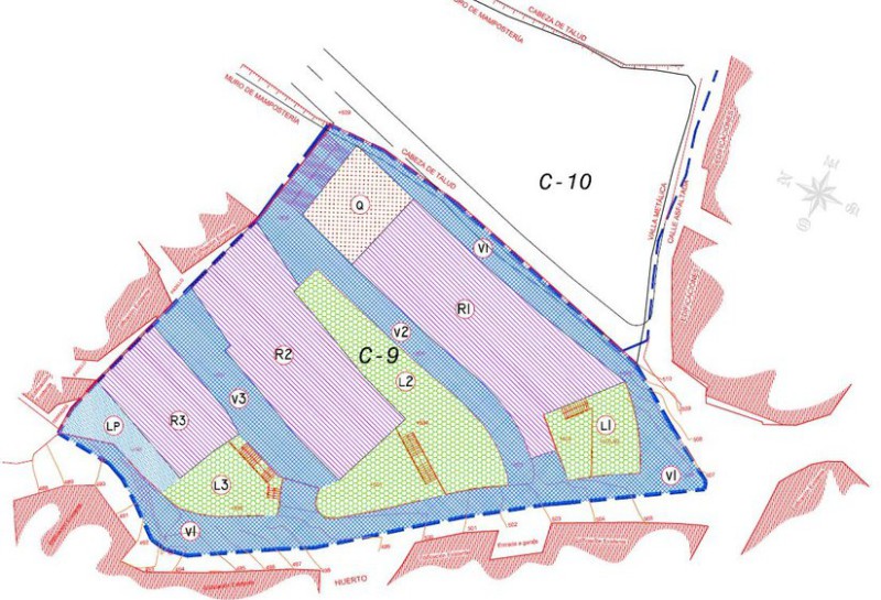
PLAN ESPECIAL CAPILEIRA C9 - GRANADA

Destinado al desarrollo para la promocion particular de vivienda unifamiliar.

Versión para imprimir | Mapa del sitio
© ARQUITECTO - ANDRES MATA CARO